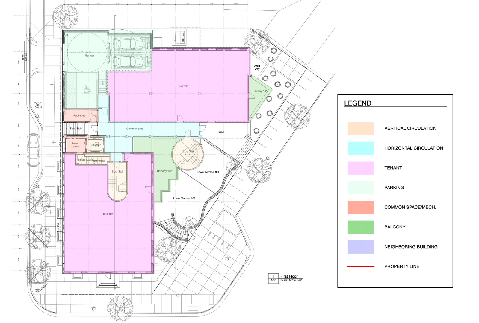
Unit 102
3 BEDROOMS
STUDY
3.1 BATHS
PATIO
NORTH-EAST CORNER
INTERIOR - 2095 SQ FT
EXTERIOR - 130 SQ FT


Unit 103
2 BEDROOMS
2.1 BATHS
BALCONY
SOUTH-EAST CORNER
INTERIOR - 1399 SQ FT
EXTERIOR - 314 SQ FT


Unit 104
2 BEDROOMS
2.1 BATHS
PATIO
SOUTH-WEST CORNER
INTERIOR - 1427 SQ FT
EXTERIOR - 112 SQ FT


Contact Us Today!
Ready to get started?
Contact us today to discuss your project, and let’s create something exceptional together
Frequently Asked Questions
Why is 303 Detroit Street so popular?
303 Detroit Street is renowned for its unique blend of history and modernity encapsulated in the heart of Ann Arbor. These luxury condos for sale offer an exclusive living experience marked by quiet elegance and expansive interiors. What sets these luxury condos for sale apart is the meticulous design that marries historical landmark characteristics with contemporary sophistication. Residents enjoy open living spaces, private outdoor areas, and crafted details that signify lasting refinement. Positioned conveniently for easy access to the vibrant Kerrytown district, these luxury condos for sale provide solitude and privacy amidst bustling city life. Ann Arbor’s premier locations, including the University of Michigan and the iconic Farmers Market, are mere steps away. Discover the charm and allure of historic luxury condos for sale at 303 Detroit Street and experience urban living reimagined. With a focus on quality and community, it’s clear why these luxury condos for sale continue to attract discerning buyers seeking sophistication in a prime location.
Where can I find luxury condos for sale in Ann Arbor?
If you're looking for luxury condos for sale in Ann Arbor, 303 Detroit Street is your ideal destination. Nestled in the serene yet vibrant Kerrytown district, our condominium development offers a blend of historical elegance and contemporary luxury. Experience life in a community where historical integrity meets modern convenience. Explore the available residences today and redefine urban living.
What makes a condo luxurious?
A condo is considered luxurious when it offers premium features such as spacious layouts, high-end finishes, and exceptional amenities. At 303 Detroit Street, luxury is defined by expansive interiors, nine-foot ceilings, and crafted details that exude sophistication. From gourmet kitchens equipped with professional-grade appliances to private terraces offering serene views, every aspect is designed to enhance your living experience. Discover our luxury condos today.
Why is living in a historic building beneficial?
Living in a historic building like 303 Detroit Street offers residents a unique blend of heritage and modern expertise. These properties often feature distinctive architectural details not found in contemporary constructions. At our location, you can enjoy the benefits of a well-preserved historical district while relishing the amenities of modern luxury condos. Experience tranquil living infused with historical charm. Contact us to explore your options.
What amenities does 303 Detroit Street offer?
303 Detroit Street offers an array of amenities designed for a luxurious living experience. From smart home technology and EV chargers to chef's kitchens and private terraces, our residences encompass the comforts of modern living. Residents also get the unique advantage of a green rooftop and a cutting-edge automobile carousel parking system. Explore additional features by visiting our luxurious building in Ann Arbor.
How does 303 Detroit Street incorporate sustainability?
Sustainability is integral to 303 Detroit Street, evidenced by our eco-friendly green rooftop designed to enhance the environment. The adaptive reuse of the historic Market Place building also reflects a commitment to sustainable development. By preserving the site’s legacy and integrating modern conveniences, we minimize environmental impact while offering luxurious living spaces. Discover how we combine heritage and sustainability in luxury housing.


